Rif: 14
ROMA
ROMA - zona Morena
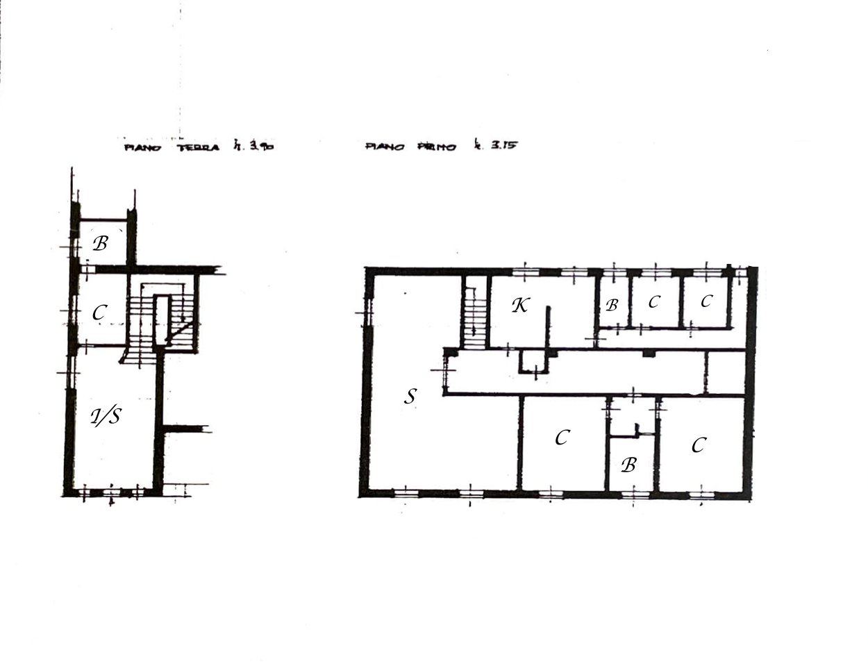
VIA TUSCOLANA – CASALE IMMERSO NEL VERDE CON SPLENDIDO GIARDINO.
In comprensorio tranquillo ed immerso nel verde, adiacente a negozi e servizi di prima necessità, proponiamo un casale su due livelli completamente arredato, di circa 250 mq., oltre il giardino ad uso esclusivo – ingresso al piano terra, dove troviamo un soggiorno, camera ospiti con bagno, una comoda scala porta al piano superiore dove si sviluppa l'immobile: ampio salone con camino e zona pranzo, cucina abitabile, due camere da letto matrimoniali servite da un ampio bagno con doccia e vasca, due camerette, bagno con doccia, bagno ospiti, numerosi armadi a muro – riscaldamento ed acqua calda autonomi - Eu. 2.100 – Rif. 14 - Disponibile da subito - Sono richieste garanzie reddituali dimostrabili.
Per informazioni o visite potete contattarci al seguente numero: 06.54211074
oppure via email: info@internationalpointgroup.com
www.internationalpoint.it
In comprensorio tranquillo ed immerso nel verde, adiacente a negozi e servizi di prima necessità, proponiamo un casale su due livelli completamente arredato, di circa 250 mq., oltre il giardino ad uso esclusivo – ingresso al piano terra, dove troviamo un soggiorno, camera ospiti con bagno, una comoda scala porta al piano superiore dove si sviluppa l'immobile: ampio salone con camino e zona pranzo, cucina abitabile, due camere da letto matrimoniali servite da un ampio bagno con doccia e vasca, due camerette, bagno con doccia, bagno ospiti, numerosi armadi a muro – riscaldamento ed acqua calda autonomi - Eu. 2.100 – Rif. 14 - Disponibile da subito - Sono richieste garanzie reddituali dimostrabili.
Per informazioni o visite potete contattarci al seguente numero: 06.54211074
oppure via email: info@internationalpointgroup.com
www.internationalpoint.it
Consistenze
| Descrizione | Superficie | Sup. comm. |
|---|---|---|
| Principali | ||
| Immobile - piano terra | 80 Mq | 80 Mqc |
| Immobile - 1° piano | 180 Mq | 180 Mqc |
| Giardino/Resede | 150 Mq | 15 Mqc |
| Totale | 275 Mqc | |

